130 viviendas v.p.o. en San Sebastian
Tipo de obra: Viviendas de Protección Oficial
Año ejecución: 2016
Localidad: Txomin Enea, Donosti/San Sebastián
Promotor: Vivienda y Suelo de Euskadi s.a.(VISESA)
Coautor:
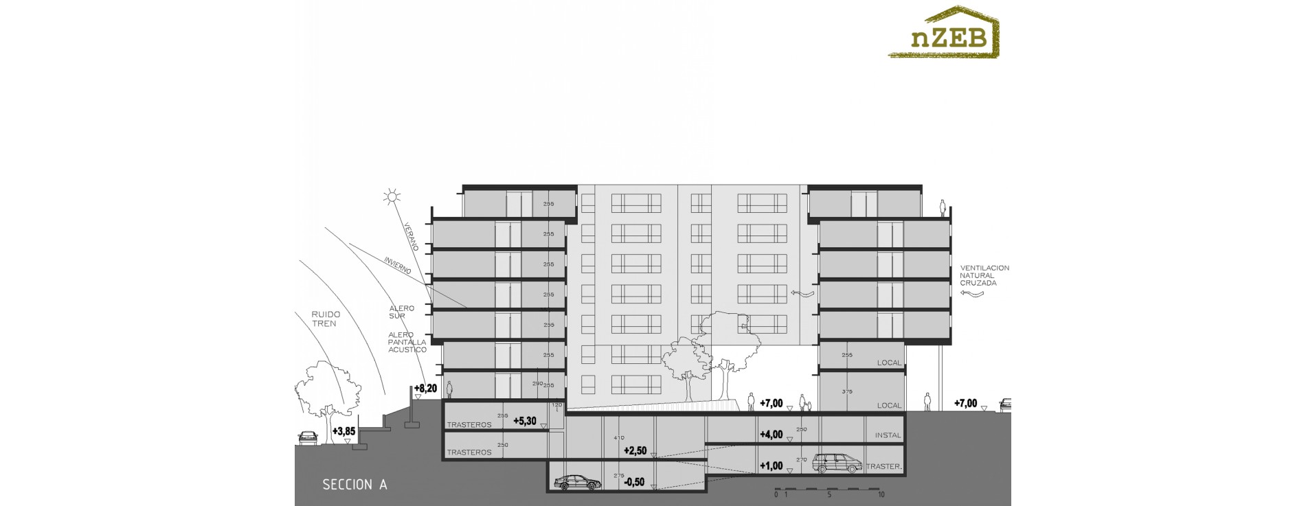
Se adopta la ocupación en planta, el volumen y la definición del Plan especial, enfatizando el acceso al espacio interior público. Buscamos una superficie exterior ajustada a los objetivos máximos de la promoción, con un buen factor de forma.
Articulamos la edificación unitaria prevista en el plan en bloques con diferentes escalas en respuesta a su entorno. La alineación de la fachada se fragmenta mediante le expresión exterior de los núcleos de escalera. La escala del lugar se transforma, situando el nuevo edificio dentro de la ciudad.
La propuesta tipológica trata de racionalizar la ocupación urbanística y los tipos resultantes. Se adopta una tipología base de escalera con dos manos en los lados largos de la manzana, con orientación norte-sur de la vivienda pasante tipo. En las esquinas se adopta la escalera con tres manos. Las esquinas son “lugares especiales” que permiten proponer soluciones acordes con la búsqueda de la eficiencia energética mediante terrazas y patios abiertos de fachada.
Abrimos el espacio interior e incrementamos el contacto de las viviendas con la luz, recuperando su conexión con el espacio público, de modo que todas las viviendas tienen ventilación cruzada en fachadas opuestas y salones con al menos una fachada de orientación SO o SE.
Fachadas al SO, SE, NO con diseño más abierto con tratamiento de huecos integrados con la terraza. La fachada adquiere “profundidad” (aprovechando las terrazas) generando un espacio “filtro” intermedio de captación y disfrute. Fachada al norte más cerrada.






